112
Cabin Senja
×
No items found.
1/1
No items found.
1/1
No items found.
1/1
Info
Location
Skrolsvik, Senja , Norway
Size
90 m2
Period
2025 -
Type
Cabin
Description

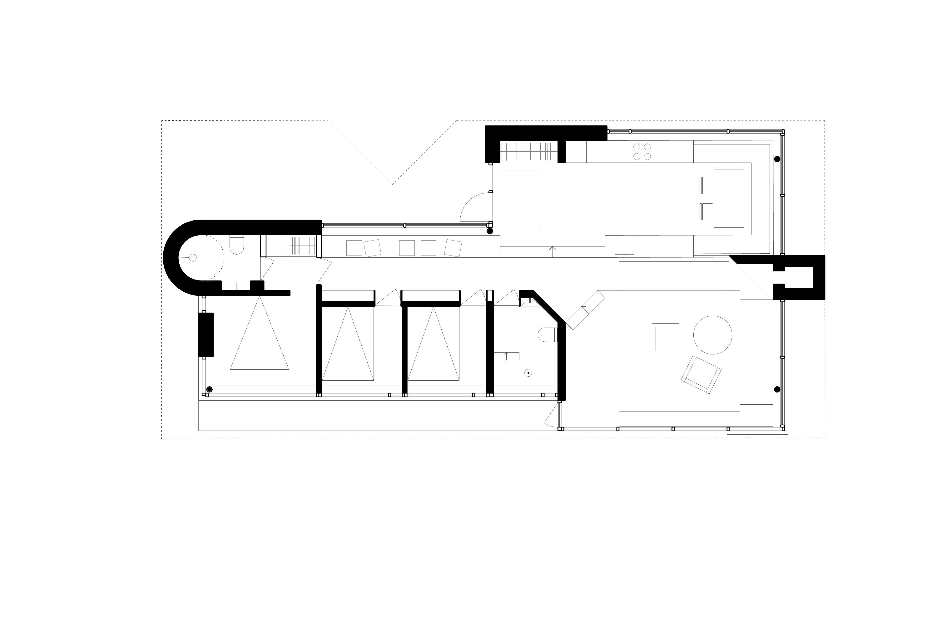
This new cabin is designed to harmonize with the natural terrain of Skrolsvika, Senja opening toward the sea and surrounding mountains. The structure follows the site’s landscape to minimize impact on the terrain, with terraced floors and two distinct roof volumes that reduce visual height. Large windows frame panoramic views, while exposed concrete inside and out is paired with warm timber details. The design emphasizes simplicity, integration with nature, and a strong connection to the dramatic coastal landscape.

Status
On-going
Client
Private
Collaborators
Consept Design, B-Consult
Images
TOTO